Lokal handlowo/usługowy | Reda | 89m2

Lokal handlowy/usługowy na sprzedaż
850 000,00 PLN , Pow. 90 m2
Drukuj ofertę
Drukuj ofertę
Typ nieruchomości:
Komercyjny
Powierzchnia:
90 m2
Typ transakcji:
sprzedaż
Liczba pokoi:
6
Lokalizacja:
Reda , Jana Brzechwy
Rok budowy:
2010
Numer oferty:
AG289515
Cena za m2:
9 444,44 PLN
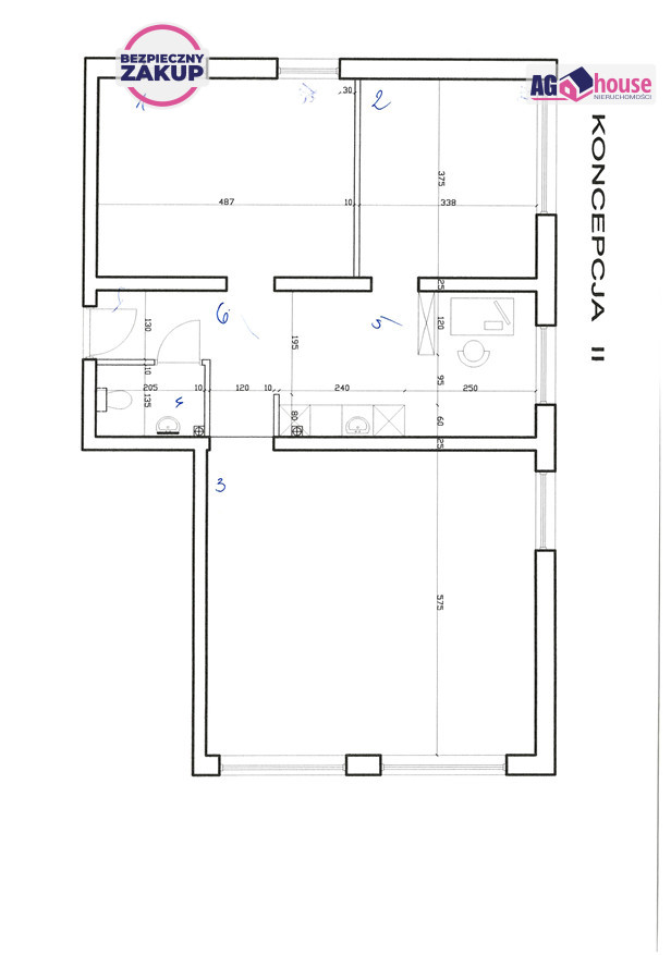
Lokal użytkowy 90 m² na sprzedaż • parter • 3 miejsca parkingowe • Reda, ul. Jana Brzechwy.

Na sprzedaż funkcjonalny, 90‑metrowy lokal użytkowy położony na parterze nowoczesnego bloku mieszkalnego z 2010 roku. Nieruchomość znajduje się w spokojnej części Redy, na osiedlu z niską zabudową i dostępem do terenów zielonych. Lokal jest w bardzo dobrym stanie, gotowy do natychmiastowego użytkowania — idealny pod działalność handlową, usługową lub biurową.

Najważniejsze atuty



  • parter, wejście z klatki schodowej

  • lokal w pełni wykończony, w bardzo dobrym stanie

  • dostosowany dla osób niepełnosprawnych

  • 3 naziemne miejsca parkingowe w cenie

  • klimatyzacja, monitoring, alarm

  • nowoczesny budynek z 2010 roku

  • dostępny od zaraz

  • pełna własność z księgą wieczystą



Układ i standard wykończenia

Powierzchnia 90 m² obejmuje:


  • 5 funkcjonalnych pomieszczeń

  • łazienkę



Standard
:


  • nowe okna PCV

  • instalacje w dobrym stanie

  • ogrzewanie miejskie z opomiarowaniem

  • klimatyzacja

  • lokal jednopoziomowy, ustawny i łatwy do adaptacji


Nieruchomość nie wymaga nakładów — można od razu rozpocząć działalność.

Budynek i otoczenie


  • blok mieszkalny, 3‑piętrowy

  • teren ogrodzony

  • monitoring, domofon/wideofon

  • spokojne, ciche osiedle

  • w sąsiedztwie łąka i niska zabudowa


Lokalizacja zapewnia komfort pracy oraz łatwy dostęp dla klientów.

Media i koszty


  • prąd, woda, kanalizacja

  • ogrzewanie miejskie

  • opomiarowanie wody i ciepła

  • czynsz: około 700 zł



Serdecznie zapraszamy do kontaktu oraz na prezentację.

-----------------

TYLKO Z NAMI KAŻDA TRANSAKCJA JEST BEZPIECZNA Z GWARANCJĄ NAJNIŻSZEJ CENY I SZYBKIEJ, KORZYSTNEJ SPRZEDAŻY.

- gwarancja najlepszej ceny nieruchomości

- najlepsze stawki u Notariusza

- żadnych ukrytych kosztów - bezpieczny zakup z polisą OC Pośrednika w PZU S.A.

Niniejsze ogłoszenie i zawarte w nim informacje, treści oraz podane w powyższej treści ceny powyższa oferta ma charakter informacyjny i nie stanowią oferty handlowej w rozumieniu art. 66 kodeksu cywilnego. Zawarte w ogłoszeniu informacje na temat nieruchomości dotyczące ofert sprzedaży lub najmu nieruchomości mogą uleć modyfikacji lub zmianom w zależności od informacji przekazywanych od osób posiadających prawo do nieruchomości. Biuro AGhouse Nieruchomości dba, aby oferty były aktualizowane na bieżąco. Nasi doradcy dokładają wszelkich starań, aby oferta nieruchomości zamieszczona przez nasze biuro odpowiadała stanowi faktycznemu nieruchomości.
Nieprawidłowy adres E-mail